Better Town Toolkit

  • Places
  • Best Practices
  • Case Studies
  • About
  • Places
  • Best Practices
  • Case Studies
  • About
  • Best Practices + Details
  • Communities
  • Orient Buildings to Streets
  • Street with Attached Houses

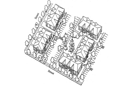
Street with Attached Houses

C33Communities Detail

Vision of street with attached houses:
  • Planter strips
  • Street trees
  • Open front yard
  • Planted area between parking and building in rear yard
  • Perimeter landscaping for off-street parking
  • Pathways
  • Retain natural vegetation

Related Details

  • C30 Neighborhood Form-Single Family
  • C31 Street with Single Family Houses
  • C32 Neighborhood Form-Multi Family
  • C40 Frontage Road–Neighborhood Edge
  • C41 Rendering of Neighborhood Frontage Roads Surrounding a Natural Resource Corridor
  • C50 Neighborhood Form-Open Space
  • C73 Neighborhood Commercial Corner
  • C74 Commercial Corridor Development
  • C70 Commercial Retail Development
  • C71 Large-Scale Commercial Development
  • C72 Commercial Office Development
  • About
  • Contributors and Sponsors
  • Contact Us

© 2026 REGIONAL PLAN ASSOCIATION & ORANGE COUNTY PLANNING DEPARTMENT